RESIDENTIAL – 2024
This project focuses on rebuilding an apartment complex that was destroyed during the Ukrainian war. With the goal of not only restoring housing but also bringing back a sense of community. The design prioritizes safety, sustainability, and modern living, using durable materials and efficient construction methods to create a space that is both functional and resilient. Consideration was given to structural stability, energy efficiency, and adaptable layouts to meet the needs of future residents. Beyond just reconstruction, this project represents the role of architecture in recovery and rebuilding hope in the aftermath of conflict.


Eastern and western facades

Detailing of stair shaft
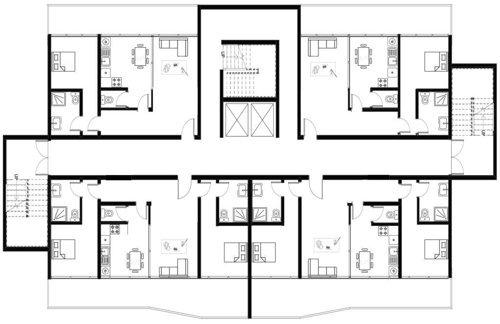
The building is composed of 18 stories, with 1 or 2 bedroom apartments. Two sets of emergency exist stairs with reinforced concrete walls were incorporated to give residents and visitors a safe-haven in case of emergency events.

Floorplan
A second idea that was studied during this design was a kinetic facade, that can be applied to the entirety of the building, or in each individual unit having each resident control the opening of the blinds.



Panel movement