RESIDENTIAL – 2024
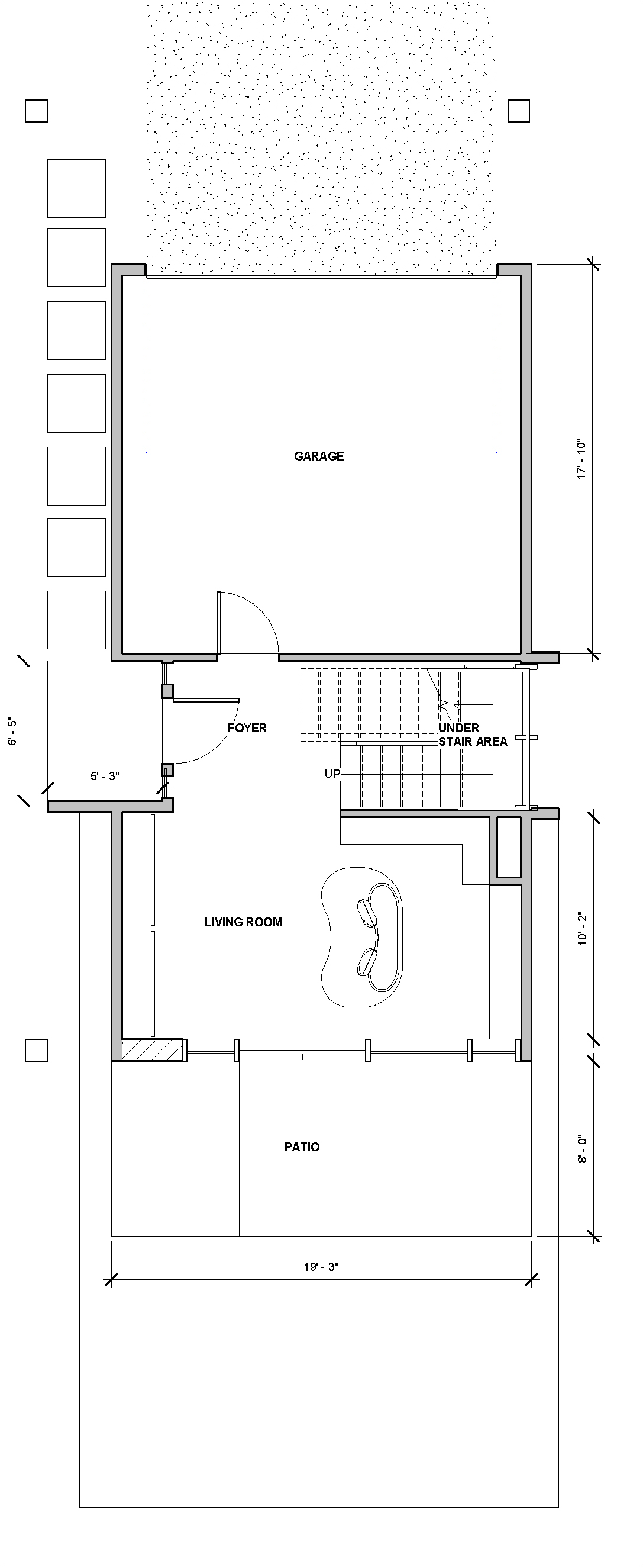
Welcomed by a two-car garage, with the entrance tucked to the side, this four-story mid-century modern home features a combination of light-colored brick, glass, wood, and steel.

Inside, the double-height living room is bright and open, thanks to very big windows.

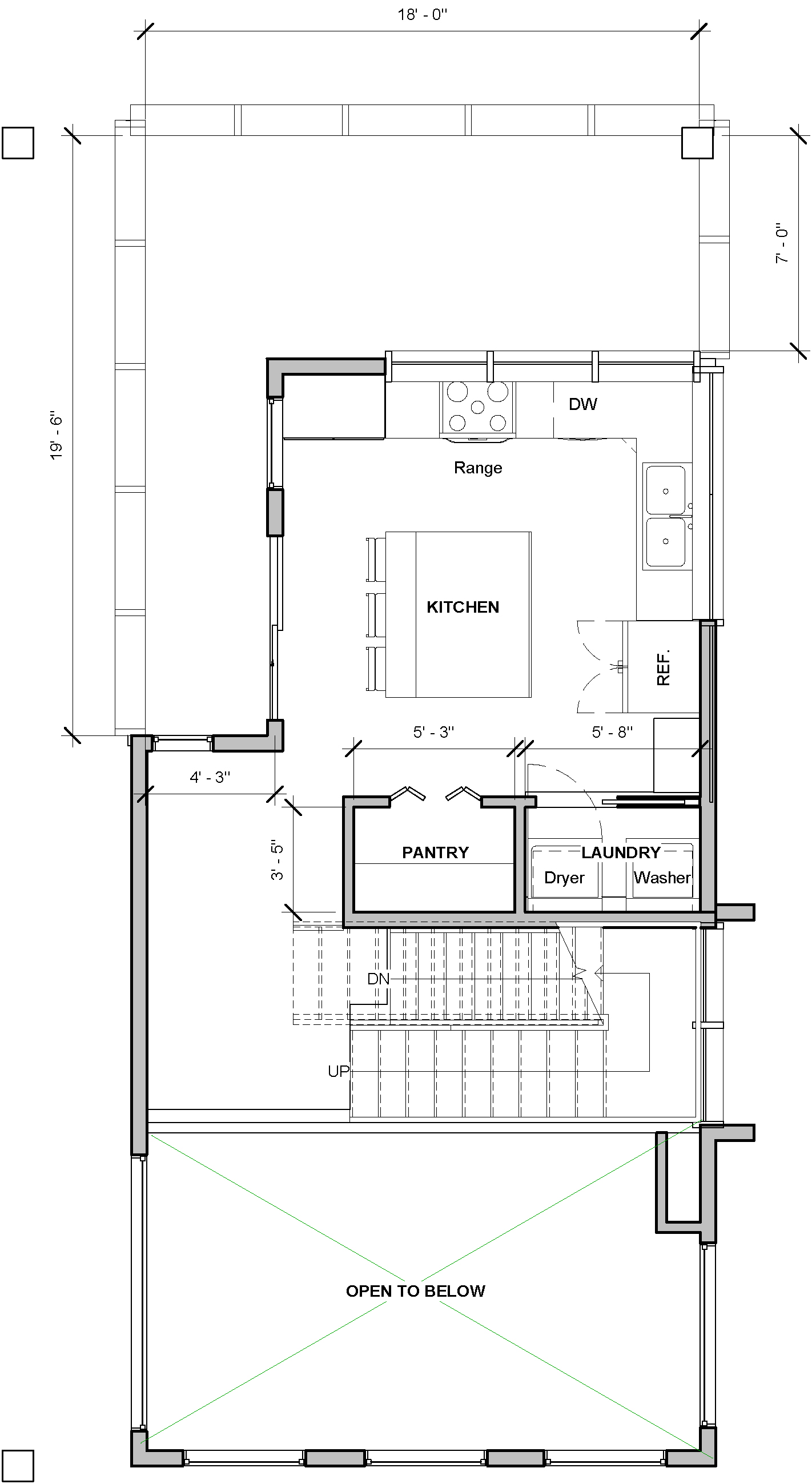
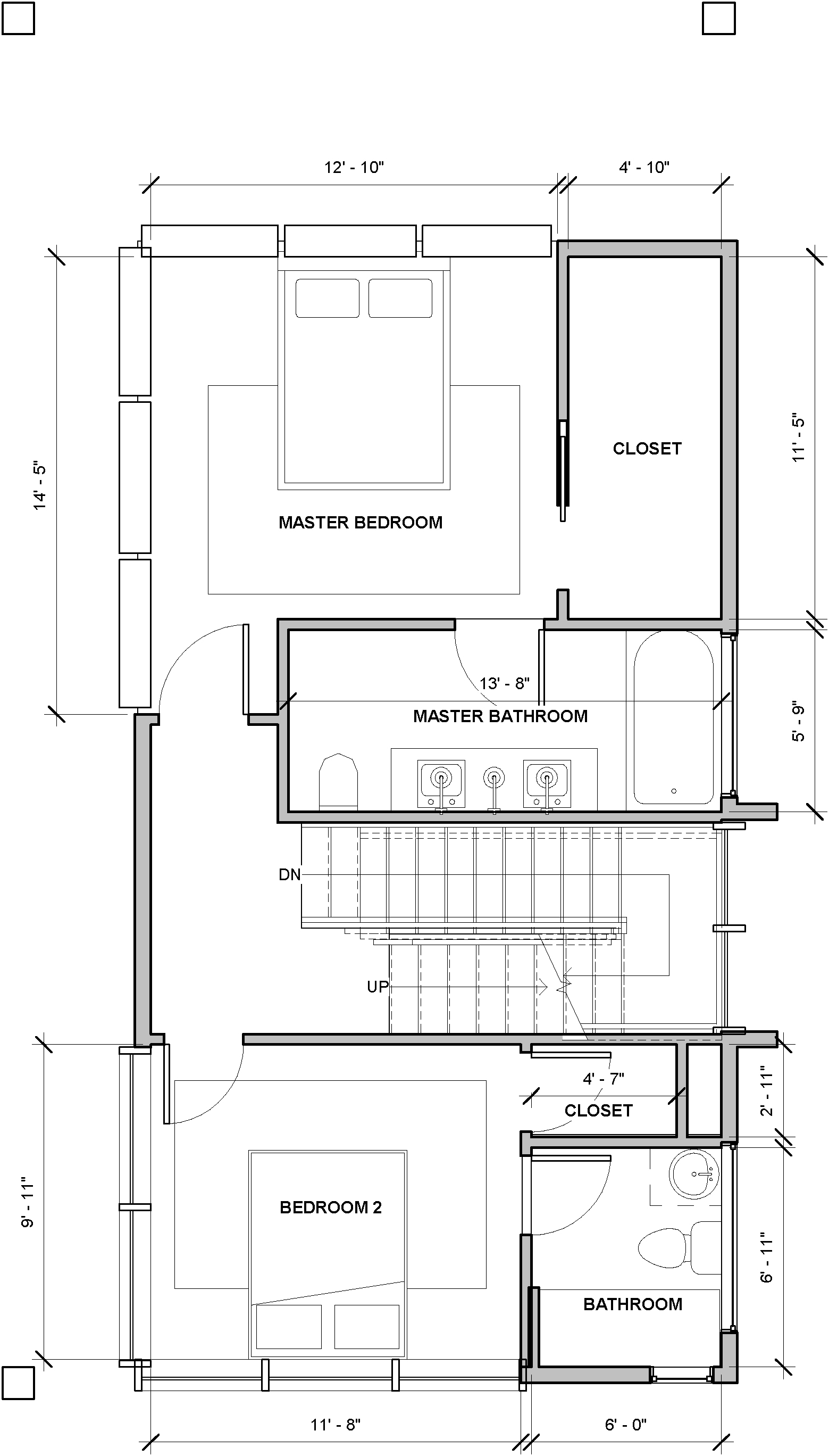
The house has three spacious bedrooms, while the modern kitchen extends to a balcony, perfect for outdoor dining.



A covered outdoor area flows seamlessly from the main living space, ideal for entertaining. To top it all off, the rooftop features a cozy sitting area with stunning views, combining style and comfort.
Floorplans:




Details:







